Exposé
KiTa - Neubau
in Bochum
Diese 3D-Visualisierung dient lediglich der konzeptionellen Veranschaulichung und ist nicht maßstabsgetreu.
44803 Bochum

XL Immmobilien GmbH
"Ein sicheres Investment mit hoher Mietrendite"

XL Immmobilien GmbH
"Unsere KiTa ist mehr als eine Investition, sie ist ein Versprechen an die Zukunft."
• Der Standort ist gut an das öffentliche Verkehrsnetz angeschlossen, mit mehreren Bus-, Bahn- und Straßenbahnlinien, die in der Nähe der Dannenbaumstraße verkehren.
• Die nächste Bushaltestelle "Dannenbaumstraße" liegt nur 114,1 Meter entfernt, und die Bahnstation "Bochum Hbf" ist fußläufig in wenigen Minuten erreichbar.
• Die Lage bietet den klaren Vorteil einer exzellenten Verkehrsanbindung: Innerhalb eines Umkreises von 300 Metern befindet sich eine Kraftfahrstraße, die einen schnellen Zugang zu lokalen Wegen und Gemeinden ermöglicht. Zudem liegt in nur einem Kilometer Entfernung eine Autobahn, die eine zügige Anbindung an weiter entfernte Städte und Regionen gewährleistet. Diese Nähe zu wichtigen Verkehrsadern verspricht eine erhebliche Zeitersparnis und Komfort im täglichen Pendelverkehr oder bei der Reiseplanung.
• In unmittelbarer Nähe, nur 600 Meter entfernt, profitiert der Standort von der Nähe zu einer Industrieanlage, was die Möglichkeit für lokale Arbeitsplätze und wirtschaftliche Synergien bietet. Diese räumliche Nähe zur Industrie kann auch die Zusammenarbeit zwischen Unternehmen und lokalen Einrichtungen fördern und bietet potenzielle Vorteile für die Gemeinschaft durch verstärkte wirtschaftliche Aktivitäten und die Stärkung der regionalen Infrastruktur.
• Die unmittelbare Umgebung zeichnet sich durch eine lebendige und familienfreundliche Atmosphäre aus, charakterisiert durch eine Vielfalt an gastronomischen Einrichtungen und Freizeitmöglichkeiten. Zahlreiche Restaurants und Cafés sind bequem zu Fuß erreichbar und bieten eine breite Palette an kulinarischen Erlebnissen. Für Familien mit Kindern ist die Gegend besonders attraktiv, da sich in kurzer Gehdistanz mehrere Spielplätze befinden, die Raum für Spiel, Bewegung und das Knüpfen sozialer Kontakte bieten. Die umliegenden Parks sind grüne Oasen in der städtischen Umgebung, ideal für entspannte Nachmittage im Freien, Picknicks oder einfach nur, um der Hektik des Alltags zu entfliehen. Diese Kombination aus Gastronomie, Freizeit und Natur macht die Gegend zu einem idealen Ort für ein ausgewogenes und genussvolles Familienleben.
Die Stadt Bochum, gelegen im Bundesland Nordrhein-Westfalen in Deutschland, hat eine Bevölkerung von 363.441 Einwohnern. Die Bevölkerungsdichte beträgt dabei 2.500 Personen pro Quadratkilometer. Bochum ist in sechs Verwaltungsbezirke gegliedert:
• Bochum-Mitte mit 102.145 Einwohnern,
• Wattenscheid mit 74.602 Einwohnern,
• Nord mit 37.004 Einwohnern,
• Ost mit 55.193 Einwohnern,
• Süd mit 50.866 Einwohnern,
• Südwest mit 56.510 Einwohnern.
Jeder dieser Bezirke umfasst verschiedene Stadtteile mit eigenen Charakteristiken und Bevölkerungsstrukturen. Weitere detaillierte demografische Daten, wie Altersstruktur, Einkommensverhältnisse oder Bildungsniveaus, können auf der Webseite der Stadt Bochum oder in statistischen Berichten des Landesamtes eingesehen werden.
Bochum-Laer
Die Postleitzahl 44803 umfasst eine Bevölkerung von 22.053 Einwohnern mit einer Bevölkerungsdichte von 2.623 Einwohnern pro km², was eine ausreichende Zielgruppe für die Kindertagesstätte darstellt.
Die Vielfalt an Einrichtungen wie Banken, Apotheken, Läden, Supermärkten und religiösen Einrichtungen in der Nähe des Standortes zeigt eine aktive und diverse Gemeinschaft, die eine unterstützende Umgebung für die Kindertagesstätte schafft.
Die Nähe zu verschiedenen Dienstleistungen und Einrichtungen wie Tankstellen, Banken, Apotheken und Einkaufsmöglichkeiten ist ein weiterer positiver Aspekt, der die Attraktivität des Standortes für Familien erhöht.
Fotos vom Grundstück am 23.10.2023 by XL Immobilien GmbH
Inmitten des familienfreundlichen Stadtteils Bochum-Laer entsteht ein moderner Schlüsselfertigbau, der mit viel Liebe zum Detail und einem hohen Anspruch an Qualität und Funktionalität gestaltet wird.
Diese neu errichtete Kindertagesstätte, konzipiert als eine Oase des Lernens und der Entfaltung, bietet Platz für sechs Gruppen, davon 3x GF1- und 3x GF2-Gruppen und setzt neue Maßstäbe in der frühkindlichen Betreuung. Mit einem durchdachten Raumkonzept, das auf die Bedürfnisse der Kinder und des pädagogischen Personals zugeschnitten ist, entsteht hier ein Ort, an dem Bildung, Spiel und Kreativität Hand in Hand gehen.
Das Gebäude verkörpert eine zeitgemäße Architektur, die nicht nur ästhetisch ansprechend ist, sondern auch nachhaltige und energieeffiziente Aspekte berücksichtigt. Von der intelligenten Raumnutzung über die Auswahl ökologischer Baustoffe bis hin zur Integration modernster Technik – diese Kindertagesstätte wird zu einem Vorzeigeprojekt für innovative Betreuungseinrichtungen.
Investoren bietet sich hier die seltene Chance, Teil eines Projekts zu werden, das nicht nur wirtschaftliche Stabilität verspricht, sondern auch einen bedeutenden sozialen Beitrag leistet. In dieser Kindertagesstätte wird die nächste Generation in einer inspirierenden und förderlichen Umgebung aufwachsen, die sowohl den Kindern als auch der lokalen Gemeinschaft zugutekommt.
Adresse: Dannenbaumstraße 34, 34a in 44803 Bochum
Flurstück: 538
Flur: 6
Gemarkung: Laer
Bodenrichtwert: 260€ pro m² - siehe auch Boris NRW.
Grundstücksgröße: 1.384 m²
Nutzfläche: ca. 1.035 m²
Monatsmiete:
13,01 € (im Kindergartenjahr 2024/2025 - nach dem Kinderbildungsgesetz KiBiz)
Zusätzlicher Mietzuschlag:
2,50 € (Diese Summe basiert auf einer schriftlichen Zusage der Stadt Bochum)
➜ Die monatliche Gesamtmiete pro m² beläuft sich auf 15,51 €, bei Berücksichtigung des Mietzuschlags der Stadt Bochum.
Berechnung jährliche Mieteinnahmen:
Nutzfläche: 1.035 m²
Miete pro m²: 15,51 € / Monat
➜ Jährliche Gesamtmiete: 192.634,20 €
Laufzeit:
Das Mietverhältnis ist auf eine Dauer von 30 Jahren ausgelegt.
Sicherheiten:
Das Mietverhältnis ist durch eine Patronatserklärung der Stadt Bochum abgesichert. Die Stadt Bochum hat ihre Unterstützung durch eine Patronatserklärung bekräftigt, welche die Zahlungsfähigkeit und -bereitschaft für den Zeitraum von 30 Jahren garantiert. Dies untermauert das starke öffentliche Interesse an der Realisierung und langfristigen Sicherung des Kita-Angebots.
Im Rahmen unseres Engagements für die Förderung von Bildung und sozialer Verantwortung haben wir uns entschieden, die Pi-Casa gGmbH als Trägerin und Mieterin für unsere neue Kindertagesstätte in Bochum zu gewinnen. Pi-Casa gGmbH, eine Organisation mit umfassender Erfahrung im Betrieb von Kindertagesstätten, steht für ihr vorbildliches Motto „Unterschiedlich gleich sein“ und ist bekannt für ihre integrative Pädagogik, die Bildung ohne Selektion und Diskriminierung ermöglicht.
Die Pi-Casa gGmbH ist stolzer Betreiber mehrerer Kita-Einrichtungen, die Kinder ab einem Alter von vier Monaten bis zum Schuleintritt umsorgen, ganz im Sinne der Qualitätsstandards des Landschaftsverbandes. Die Einrichtungen wie die Kita Ringelsweide und die Kita Adlerstraße sind Zeugen der engagierten Arbeit von Pi-Casa, wo Betreuung in verschiedenen Altersgruppen von 7:30 bis 16:30 Uhr in einer Atmosphäre angeboten wird, die beinahe einem zweiten Zuhause gleicht.
Das Spiel als zentrale Lernaktivität ermöglicht den Kindern, Kreativität und soziale Fähigkeiten in einer liebevollen und anregenden Umgebung zu entwickeln. Pi-Casa verfolgt das Berliner Eingewöhnungsmodell, um Kindern eine sanfte Anpassungsphase zu ermöglichen, und setzt sich für wohnliche und kindgerechte Raumgestaltung ein.
Das pädagogische Konzept von Pi-Casa ist fortschrittlich und basiert auf der Kompetenz der Erzieher, moderne Lernansätze zu adaptieren. Dies wird besonders in den Großtagespflegen deutlich, wo auf die Bedeutung von ausgiebigen Spiel- und Bewegungsmöglichkeiten Wert gelegt wird.
Ein kontinuierliches Fortbildungsprogramm und die Förderung von Selbstreflexion für das Personal zeugen von einem ganzheitlichen Personalmanagementansatz. Werte wie Respekt, soziale Konfliktlösung und Gemeinschaft werden in den Einrichtungen von Pi-Casa großgeschrieben.
Mit ihrer unbefristeten Anerkennung als Träger der freien Jugendhilfe gemäß § 75 SGB VIII ist Pi-Casa gGmbH ein starker und verlässlicher Partner für die Zukunft unserer Kindertagesstätte und eine Bereicherung für die Gemeinschaft.
Für weitere Informationen besuchen Sie die Website von Pi-Casa: www.pi-casa.de

Kaufpreis: 4.045.318,20 €
Ermittlung des Verkaufspreises:
Die Festlegung des Kaufpreises für die Kindertagesstätte Dannenbaumstraße basiert auf einer fundierten Bewertungsmethodik, die die langfristige Rentabilität und den nachhaltigen Wert der Immobilie berücksichtigt. Die XL Immobilien GmbH hat den Verkaufspreis auf Grundlage des 21-fachen der angenommenen Jahresnettokaltmiete kalkuliert. Diese Methode ist in der Immobilienbranche weit verbreitet und speziell für Anlageobjekte wie eine Kindertagesstätte geeignet, da sie die zu erwartenden Einnahmen reflektiert und eine präzise Bewertung ermöglicht.
Berechnungsgrundlage:
Die Jahresnettokaltmiete wird anhand des aktuellen Mietpreises pro Quadratmeter Nutzfläche, multipliziert mit der Gesamtfläche der Kindertagesstätte, berechnet. Dabei werden die langfristige Mietvereinbarung mit der Pi-Casa gGmbH und die Patronatserklärung der Stadt Bochum berücksichtigt, die eine stabile und verlässliche Einnahmequelle über einen Zeitraum von 30 Jahren garantieren.
Kaufpreisformel: Kaufpreis = Jahresnettokaltmiete × Faktor
Berechnung: Die Jahresnettokaltmiete beträgt 192.634,20 € und der Faktor beträgt 21
Kaufpreis = 192.634,20 Euro × 21= 4.045.318,20 €
Der Kaufpreis für die Kindertagesstätte Dannenbaumstraße wurde mit größter Sorgfalt und Transparenz ermittelt, um Ihnen als Investor Sicherheit und Klarheit zu bieten. Wir haben eine konservative, aber bewährte Bewertungsmethode angewandt, die den nachhaltigen Cashflow aus der Vermietung in den Vordergrund stellt. Diese Methode sichert nicht nur eine faire Bewertung des Objekts, sondern unterstreicht auch die Rentabilität des Investments.
Die Anwendung des Faktors 21 auf die Jahresnettokaltmiete reflektiert das hohe Niveau an Sicherheit und Stabilität, das mit dieser Kapitalanlage einhergeht. Die solide Partnerschaft mit Pi-Casa gGmbH und die Unterstützung durch die Stadt Bochum gewährleisten eine nachhaltige Einnahmequelle, die weit über die übliche Marktdauer hinausgeht.
Unser Ziel ist es, Ihnen eine Investitionsmöglichkeit zu präsentieren, die nicht nur finanziell attraktiv ist, sondern auch eine soziale Komponente trägt. Durch die Investition in die Kindertagesstätte Dannenbaumstraße tragen Sie aktiv zur Gestaltung der Bildungslandschaft in Bochum bei und investieren in die Zukunft unserer Kinder.
In einer seltenen Direktofferte präsentieren wir, die XL Immobilien GmbH als exklusiver Eigentümer die Chance, in eine herausragende Immobilie zu investieren, ohne zusätzliche Maklergebühren.
Wir bieten Ihnen die Möglichkeit, direkt an der Quelle in eine zukunftssichere Kindertagesstätte zu investieren und damit nicht nur von einem provisionsfreien Erwerb zu profitieren, sondern auch von einem direkten Draht zu uns als Entwickler.
Unsere transparente, geradlinige Verkaufsstrategie gewährleistet, dass Sie als Investor vollständige Einsicht in alle Aspekte des Projekts erhalten und ohne Vermittlung Dritter verhandeln können. Dies spart nicht nur Kosten, sondern ermöglicht auch eine unmittelbare und persönliche Abstimmung aller Vertragsdetails – ein Privileg, das nur beim Kauf direkt vom Eigentümer möglich ist.
Die Investition in unsere schlüsselfertige Kindertagesstätte ist mehr als ein finanzielles Engagement; es ist eine Entscheidung für Qualität und Vertrauen. Mit der XL Immobilien GmbH wählen Sie einen Partner, der Wert auf eine nachhaltige Bauweise, innovative Konzepte und soziales Bewusstsein legt. Unser Angebot ist eine Einladung an visionäre Investoren, die nicht nur auf der Suche nach einer soliden Kapitalanlage sind, sondern auch ein Erbe des Fortschritts und der Gemeinschaft schaffen möchten.
Ergreifen Sie die Initiative und setzen Sie auf eine Investition, die sich durch klare Werte, transparente Kommunikation und einen direkten Einfluss auf die Gesellschaft auszeichnet. Mit uns entscheiden Sie sich für einen provisionsfreien Kauf, der ebenso wirtschaftlich wie sozial rentabel ist.

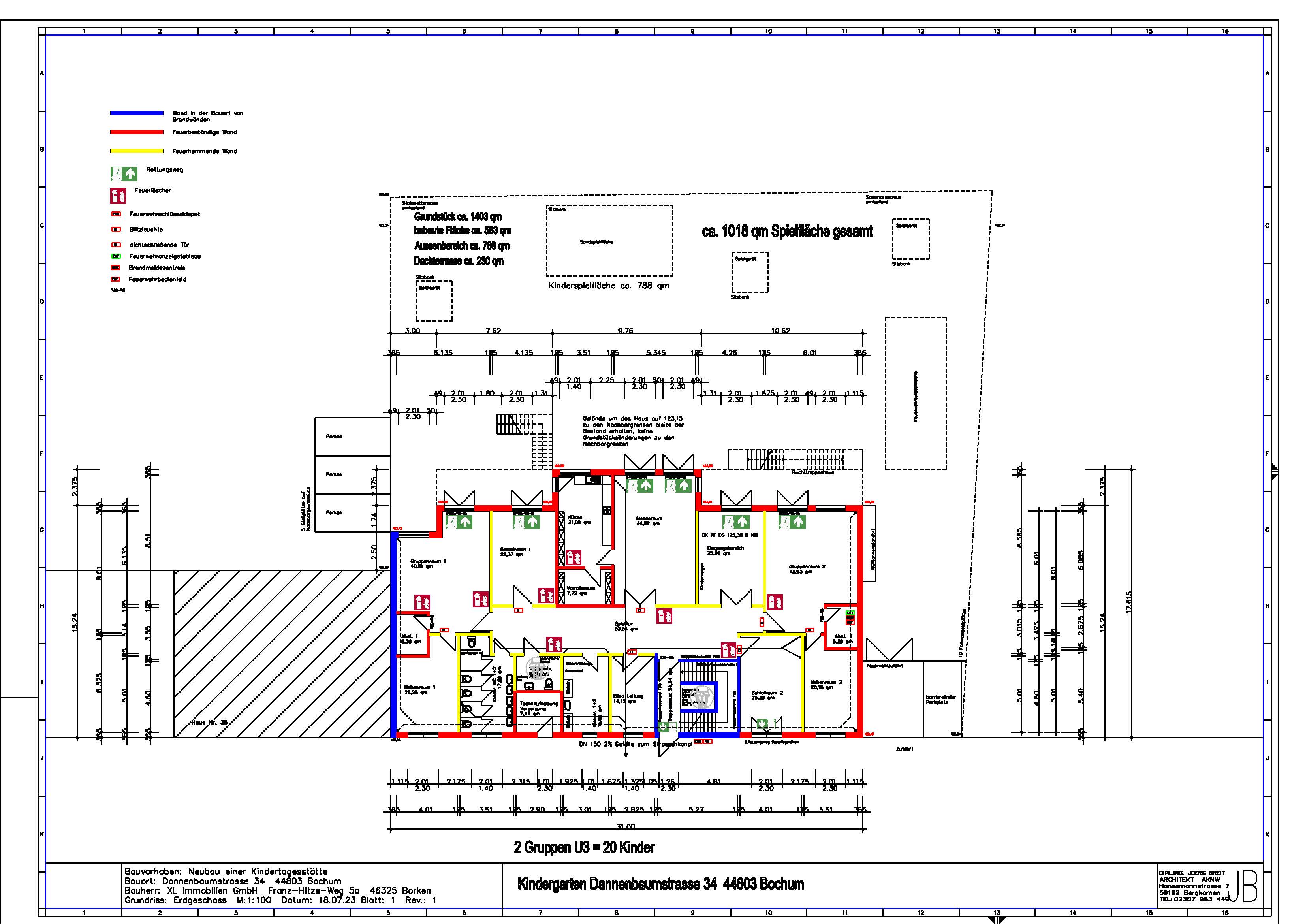
Klicke auf die Zeichnung zur vollen Bild-Auflösung.
Zielgruppe und Kapazität:
Die KiTa wird 90-105 Betreuungsplätze anbieten, davon 30 für U3-Kinder (unter drei Jahre) und 75 für Ü3-Kinder (über drei Jahre).
Flächenaufteilung und Nutzungsbereiche
• Grundfläche: Insgesamt 1.204,45 m²
• Nutzfläche: ca. 1.035 m², aufgeteilt in
• Erdgeschoss: 430 m²
• Obergeschoss: 430 m²
• Staffelgeschoss: 175 m²
• Spielfläche: Gesamt 1.018 m², unterteilt in
• Außenbereich: 788 m²
• Dachterrasse: 230 m²
Erdgeschoss - Bereich für U3-Kinder
• Gruppenräume: Drei Gruppenräume für je eine Kindergruppe inklusive Nebenräumen und Schlafräumen.
• Sanitärbereich: Ein Kinder-WC-Raum mit fünf Toiletten, fünf Waschbecken inkl. einem barrierefreien WC.
• Badezimmer: Ausgestattet mit einer bodengleichen Dusche, WC und Waschbecken.
• Küche: Küche und angrenzendem Vorratsraum.
• Weitere Räumlichkeiten: Wickelraum, Büro für die Leitung, Technik-/Heizungsraum.
• Eingangs- und Bewegungsbereich: Einladender Eingangsbereich, separates Treppenhaus mit Fahrstuhl und ein Spielflur.
Obergeschoss - Bereich für Ü3-Kinder
• Gruppenräume: Zwei Gruppenräume mit zugehörigen Abstell- und Nebenräumen.
• Sanitärbereich: Ein Kinder-WC-Raum mit fünf Toiletten, fünf Waschbecken inkl. einem barrierefreien WC.
• Mehrzweck-Besprechungsraum mit einem Geräteraum.
• Personalräume: Personalraum mit separaten Toiletten für Damen und Herren.
• Fluchtwege: Zwei Fluchtbalkone zur Gewährleistung der Sicherheit.
• Differenzierungsräume: Zwei Differenzierungsräume.
• Weitere Räumlichkeiten: Wickelraum, Treppenhaus mit Fahrstuhl und ein Spielflur.
Staffelgeschoss - Weitere Gruppenräume für Ü3-Kinder
• Gruppenraum: Ein weiterer Gruppenraum mit Abstell- und Nebenraum.
• Differenzierungsraum: Einen Differenzierungsraum.
• Sanitärbereich: Ein Kinder-WC-Raum mit drei Toiletten und drei Waschbecken inkl. einem barrierefreien WC.
• Außenbereich: Zugang zur spielbaren Dachterrasse.
• Fluchtweg: Ein Fluchtbalkon zur Gewährleistung der Sicherheit.
• Weitere Räumlichkeiten: Treppenhaus mit Fahrstuhl und ein Spielflur.
Die bemaßten Grundrisse und die detaillierte Nutzflächenberechnung sind im Anhang beigefügt und geben einen umfassenden Überblick über die geplanten Räumlichkeiten.
Für das Bauvorhaben der Kindertagesstätte Dannenbaumstraße 34 a in Bochum wird eine Konstruktion gemäß dem KfW-Effizienzhaus 55 Standard angestrebt. Dieser Standard garantiert ein hohes Niveau an Energieeffizienz und trägt zur Reduzierung der Betriebskosten sowie zum Umweltschutz bei.
KfW-55 Standards:
• Energieeffizienz: Der Energiebedarf der Kindertagesstätte wird 45% niedriger sein als die Vorgaben der aktuellen Energieeinsparverordnung (EnEV) es für Neubauten fordern.
• Isolation: Hochwertige Dämmung der Gebäudehülle sowie der Einsatz von 3-fach verglasten Fenstern und thermisch getrennten Fensterrahmen sorgen für minimale Wärmeverluste.
• Heiztechnik: Einsatz von effizienter Heiztechnologie, wie z.B. Luftwärmepumpe.
• Erneuerbare Energien: Integration von Photovoltaikanlagen zur Stromerzeugung und eventuell solarthermische Anlagen zur Unterstützung der Warmwasseraufbereitung.
• Bauweise: Umsetzung einer luftdichten Bauweise, die systematisch überprüft wird (Blower-Door-Test).
Das Sicherheitskonzept der Kindertagesstätte orientiert sich an den neuesten Standards und Vorschriften, um ein Höchstmaß an Sicherheit für die Kinder zu gewährleisten.
Standards und Richtlinien:
• Allgemeine Sicherheitsstandards: Einhaltung der aktuellen DIN-Normen für den Bau und Betrieb von Kindertageseinrichtungen.
• Brandschutz: Installation von Brandmeldeanlagen gemäß DIN 14675 und Bereitstellung von Fluchtwegen und Notausgängen nach DIN EN 1125.
• Einbruchschutz: Sicherung der Fenster und Türen nach den Empfehlungen der Polizei und der DIN EN 1627 bis 1630.
• Spielplatzsicherheit: Gestaltung der Spielbereiche nach DIN EN 1176, welche die Sicherheitsanforderungen für Spielplatzgeräte festlegt.
• Sicherheitsbeleuchtungssysteme müssen den Normen DIN EN 50172, DIN EN 1838 und DIN V VDE V 0108-100 entsprechen.
Die Website sichere-kita.de bietet darüber hinaus eine Fülle an Informationen und Checklisten, um sicherzustellen, dass alle relevanten Sicherheitsaspekte berücksichtigt werden. Von der sicheren Gestaltung der Räumlichkeiten bis hin zu Notfallplänen und regelmäßigen Sicherheitsunterweisungen des Personals wird alles umgesetzt, um den Schutz der Kinder zu gewährleisten.
Das pädagogische Raumkonzept der neuen Kindertagesstätte wurde mit besonderer Sorgfalt entwickelt, um den Anforderungen einer modernen, kindgerechten Bildungs- und Betreuungseinrichtung gerecht zu werden. Die Räumlichkeiten sind so gestaltet, dass sie den Kindern vielfältige Möglichkeiten zum Spielen, Lernen und Entwickeln bieten.
Raumgestaltung und -nutzung:
• Gruppenräume: Jede Kindergruppe verfügt über einen eigenen Gruppenraum, der multifunktional für verschiedene Aktivitäten genutzt werden kann. Abstellräume und Nebenräume unterstützen die pädagogische Arbeit durch zusätzlichen Stauraum für Lehr- und Lernmaterialien.
• Schlafräume: Im Erdgeschoss gelegen, bieten sie den U3-Kindern einen ruhigen Rückzugsort für den Mittagsschlaf.
• Spielflure: Diese bieten zusätzlichen Platz für Bewegung und Spiel in einer geschützten Innenraumumgebung.
Das Raumkonzept wurde vom Landschaftsverband Westfalen-Lippe (LWL) eingehend geprüft und hat in der "Inaussichtstellung der Betriebserlaubnis" besondere Anerkennung gefunden. Insbesondere die durchdachte Raumaufteilung und die Schaffung anregender Lernumgebungen wurden hervorgehoben.
Die Einrichtung wird vollständig barrierefrei gestaltet, um allen Kindern und Besuchern gleichermaßen Zugang zu ermöglichen:
• Sanitärbereiche: Barrierefreie WCs in jedem Geschoss und ein barrierefreies Badezimmer im Erdgeschoss sind nach neuesten Standards ausgestattet.
• Zugänglichkeit: Breite Flure und ein Aufzug, der alle Geschosse vom Erdgeschoss bis zur Dachterrasse im Staffelgeschoss verbindet, gewährleisten eine optimale Erreichbarkeit.
• Eingangsbereich: Der Eingang ist ebenerdig konzipiert und somit für Rollstuhlfahrer und Eltern mit Kinderwagen ohne Hindernisse zugänglich.
Webdesign powered by GeoGiv